emilspec
An Integrated Publishing, Inc. Site
eMilSpec
An Integrated Publishing Website
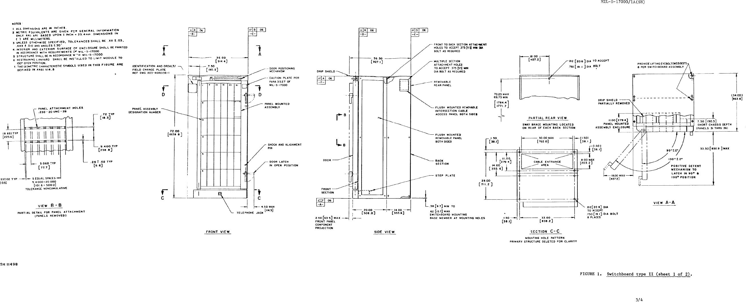
MIL-S-17000-1 Switching Equipment, Combat System, Command And Control, Fire Control And Interior Communication Switchboard, Surface Ship, Deck-Mounted \(Terminal Board Connected\), Type Ii
Pages
1
-
2
-
3
-
4
-
5
-
6